4U 19" dator chassi, ATX, svart, extra djup
19” 4U ATX kabinet med ekstra dybde. Til montering i 19” rack, med blæsere och udskifteligt støvfilter
4 844,80 SEK
Exkl. moms
Quantity
På vägen in
Referens S-IND19"ATX+SD
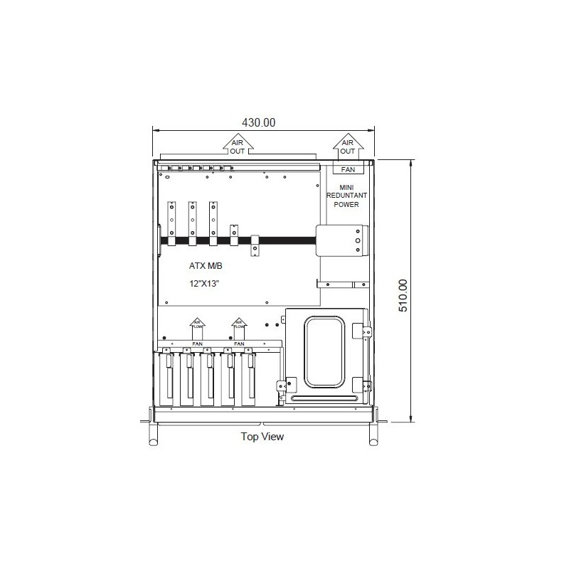
Specifications
| Drev | 2 x 5¼”, 1 x 3½” eksternt, 5 x 3½” internt |
|---|---|
| Indikatorer og kontakter | Lamper viser harddiskaktivitet og system tændt, knapper til RESET og tænd/sluk |
| Køling | 120 x 120 mm (luftmængde: 108 CFM) med udskifteligt støvfilter |
| Strømforsyning | PS/2 standard f.eks. PS400ATX |
| Vikt | 19 kg. |
S-IND19"ATX+SD kan monteres med de store ATX serverbundkort fra Intel och andre fabrikanter på 12” x 13” och har ”Hold down clamps”, der sikrer, at de installerede indkontaktskort ikke ”huppper” ud af soklerne på bundkortet.
Andra produkter i samma kategori:
4U 19 "ATX Server Rack Cabinet 3X 51/4" eller 4 x 3½" kan levereras monterat med CPU-kort monterat färdigt för användning
19" 4U ATX-skåp
3x 51/4 inflygning framifrån
1x 3,5" ca framifrån
4 x 3½ "intern
1x Tunt DVD-utrymme Fram
PS / 2 ATX plats
USB 3.0 framsida
plats för 7 full höjd och full längd kort
1x 120mm blåser fram PWM
12,5 kg
563,7 x 430,0 x 176,0 (mm) med front
5 083,20 SEK
Artikelnummer: S-IND19"ATX4B
Föregående
Nästa






