4U 19" PC-cabinet, ATX, , extra deep
19” 4U ATX kabinet med ekstra dybde. Til montering i 19” rack, med blæsere og udskifteligt støvfilter
4,844.80 SEK
Excl. VAT
Quantity
Product number S-IND19"ATX+SD
Specifications
| Drev | 2 x 5¼”, 1 x 3½” eksternt, 5 x 3½” internt |
|---|---|
| Indikatorer og kontakter | Lamper viser harddiskaktivitet og system tændt, knapper til RESET og tænd/sluk |
| Køling | 120 x 120 mm (luftmængde: 108 CFM) med udskifteligt støvfilter |
| Strømforsyning | PS/2 standard f.eks. PS400ATX |
| Weight | 19 kg. |
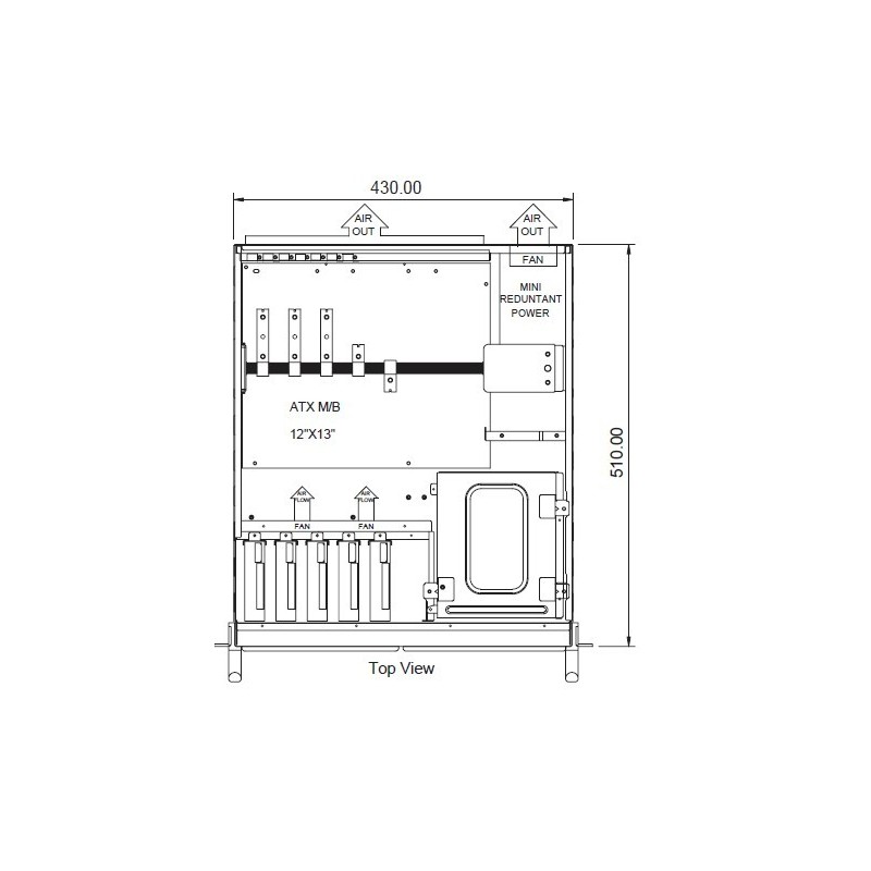
S-IND19"ATX+SD kan monteres med de store ATX serverbundkort fra Intel og andre fabrikanter på 12” x 13” og har ”Hold down clamps”, der sikrer, at de installerede indstikskort ikke ”hopper” ud af soklerne på bundkortet.
Andre produkter i samme kategori:
4U 19 "ATX Server Rack Cabinet 3X 51/4" or 4 x 3½ "can be supplied assembled with CPU card mounted ready for use
19 "4U ATX cabinet
3x 51/4 approach from front
1x 3.5" Approx from front
4 x 3½ "Internal
1x Slim DVD space Front
PS / 2 ATX Place
USB 3.0 Front
room for 7 full height and full-length card
1x 120mm blows in front PWM
12.5kg
563.7 x 430.0 x 176.0 (mm) with front
5,083.20 SEK
Item Number: S-IND19"ATX4B
Previous
Next





